霸州市人民政府
政府信息公开
索 引 号:
000562417/2026-00286
主题分类:
建设规划
发布机构:
市自然资源和规划局
发文日期:
2026-04-17
文 号:
有 效 期:
有 效
名 称:
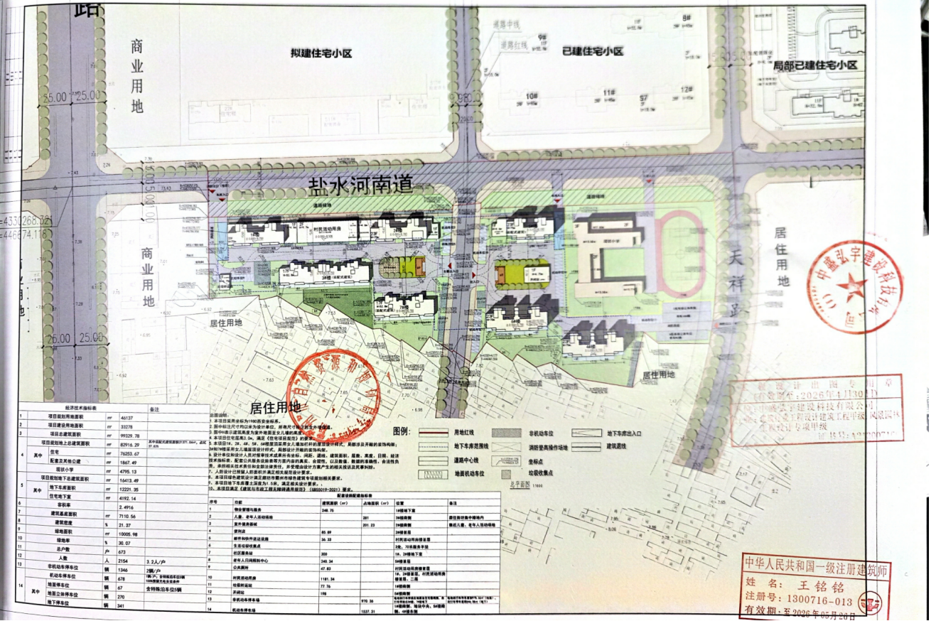
建设工程规划许可证
建设工程规划许可证
发布机构:市自然资源和规划局 发布日期:2026-04-17
打印此页
关闭窗口